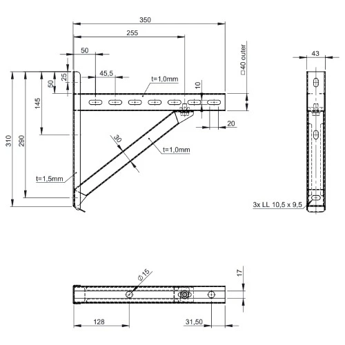
Wandstütze mit Querträger zur wandseitigen Befestigung unserer doppelwandigen Edelstahlschornsteine der Marke Jeremias. Der Wandabstand hängt von der Dämmstärke des verwendeten Edelstahlrohre und des Innendurchmessers ab. Die Berechnung zum Wandabstand finden Sie oben in der Kurzbeschreibung.
2x Wandstütze & Querträger Typ I 350 mm













Rezensionen
Es gibt noch keine Rezensionen.